Стол скамейка трансформер своими руками чертежи

Категория: Мебель
20 322
4


Стол скамейка трансформер своими руками, чертежи и подробное описание конструкции, которая способна из скамейки превратиться в стол, и наоборот.

Такое простое решение, обеспечит удобное место для отдыха на даче, а при необходимости – небольшой столик и лавочку.

Посмотрим на скамейку



Легким движением руки … Легким движением руки … – наша модель, превращается …



превращается ... в элегантный столик,



где свободно могут разместиться два человека.
Размер столика зависит от длины конструкции.

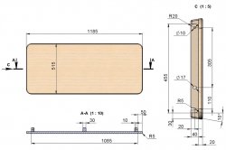
Стол скамейка трансформер состоит из пяти составных частей:

• металлический каркас
• спинка – столешница
• фиксатор столешницы
• сиденье
• фиксатор сиденья

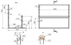
МЕТАЛЛИЧЕСКИЙ КАРКАС



Изготовим из:

- квадратной металлической трубы ГОСТ 8639-82, 25 х 25 х 2 (мм);
- круглой металлической трубы ГОСТ 8734-75, Ø17 (мм);
- деревянных заглушек



Трубы сварим между собой, как показано на чертежах. Деревянные заглушки вставим в полости труб. Для прочности конструкции по углам приварим треугольные металлические вставки.



СПИНКА – СТОЛЕШНИЦА





Изготовим из деревянных брусков и фанеры толщиной ГОСТ 3916.1-96, 15…20 (мм).

ФИКСАТОР СТОЛЕШНИЦЫ





Изготовим из деревянных реек, которые соединим между собой металлическим прутом ГОСТ 2590-88, диаметром 10 (мм).

СИДЕНЬЕ





Изготовим из деревянных брусков и дощечек. Одну дощечку сделаем короче. Это позволит фиксатору сиденья свободно стать в паз между двумя дощечками.

ФИКСАТОР СИДЕНЬЯ





Изготовим из металлического прута диаметром 12…14 (мм)

Стол скамейка трансформер, своими руками собранный по чертежам – оригинальная мебель для вашего приусадебного участка.
Если две скамейки поставить друг напротив друга в зеркальном отражении, то получиться неплохой стол для шестерых человек, за которым будет приятно посидеть на природе.



Для придания товарного вида:

- в металлоконструкции удалите абразивным кругом сварные швы и нанесите защитное лакокрасочное покрытие;
- поверхности деревянных элементов конструкции доведите до гладкого состояния и нанесите защитное декоративное покрытие.





Заказать чертеж


Поделитесь с друзьями!

Комментарии
Наташа25 октября 2014 00:14
Так удобно с ними, не надо теперь бриться каждый день. Эффект гладкости длится долго, это главное.

Можно сказать, стол и скамейка в одном флаконе :-) Удобная конструкция, легко раскладывать, при необходимости можно сложить и убрать куда-нибудь. Складная мебель всегда в плюсе.
Лера25 октября 2014 00:32
Ой, красота-то какая, и места много не занимает - уже хочу такой трансформер на дачу! Сохраню в закладочках, а к весне попробуем с мужем воспроизвести по чертежам предложенным это чудо.
Полина26 октября 2014 00:14
То что нужно! Живу в квартире а страсть как люблю природу, и частенько выезжаю за город свежим воздухом подышать. За таким-то столиком можно будет и весь день с удовольствием провести!
Анна29 декабря 2014 00:59
Просто шикарная скамейка получилась, давно искала инструкцию, как подобное чудо сделать! Перед дачным сезоном обязательно попробую, должно все получиться, ведь инструкция простая и результат налицо!
Добавить комментарий
Введите два слова, показанных на изображении: *